Description
Stay 3 Pay 2 May 1st - September 1st excluding long weekend and school holiday
Stay 7 Pay 5 May 1st - September 1st excluding long weekend and school holiday
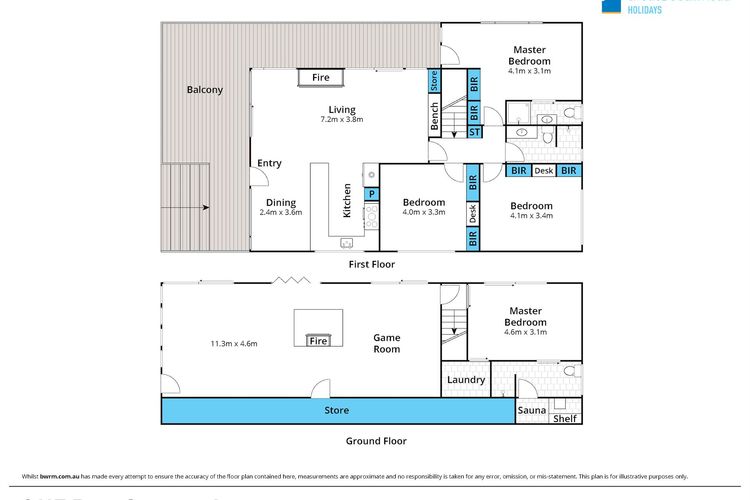
Park the car and discard the keys until you go home, as a short 5 minute walk will find you standing on the main street of Lorne looking out to Louttit Bay. Absorb the relaxed family beach house comfort the moment you walk through the door. Perfect for families, with the children well catered for, space to run and play, parents can overlook the playtime and ocean while soaking in the reviving sea air. The recent addition of a spacious second living zone/games area has only increased the ability of Fern House to cater for the whole family.
Upon entry, be greeted by the warm open family and dining room, overlooked by the kitchen, the open feel inspiring quality time spent together, whether lounging in summer threads, cosy by the fire or cooking up a storm.
Moving through the house, bunk bedroom to the right, stairway down to second lounge room and laundry to the left, ending in the main bathroom, flanked by two bedrooms, one of which is en-suited and with deck access.
With a wrap around deck area, with shared access from the lounge and master bedroom, the flow of this informal comfortable family beach hideaway is perfect to unwind and slow down.
Features
Newly renovated
Hydronic heating throughout
Wood fireplace
Fully equipped kitchen with new appliances
Laundry with new appliances
New beds throughout
Brand new - Infrared sauna
Sleeping Configuration
Sleeps up to 8 adults
4 bedrooms:
1 King bed
1 Queen bed
2 bunk beds (4 single beds)
Living & Entertainment
Polished floorboards
Pool table
Table tennis table
Record player
Books, games & 2 televisions
Outdoor & Wellness
New pergola
New deck
Brand new - Infrared sauna
Comfort & Essentials
Double-glazed cedar windows and doors
Free Wi-Fi
Hair dryer
Shampoo, conditioner & soaps provided
Smoke alarms installed
House Rules
No pets allowed
Maximum 10 guests (no large parties)
Strictly no smoking indoors
Just a few general words about the property.
It is important to understand this property is a holiday rental, not a shared space or principle place of residence, which ensures you privacy and quiet enjoyment. It is also professionally managed, giving you peace of mind of 24/7 support by a local, just around the corner.
Pricing is based around seasons, length of stay and number of guests. It is important all bookings reflect the exact number of guests. If this changes, you must contact us. Every effort has been made to ensure the accuracy of the published rates across all booking platforms, however Great Ocean Road Real Estate Holidays reserves the right to correct pricing errors.
Unless otherwise previously agreed, all stays must only be used for private residential usage and to accommodate the number of guests stated on your booking. Unless ‘Pets Welcome’ is advertised, the property is strictly no pets.
All holiday accommodation bookings are accepted on the basis that all occupants will treat the property with the same respect as their own home in accordance with the “House Rules”. Noise audible outside the property is prohibited between 10pm and 8am.
We love professionally managing holiday homes and guest experiences and look forward to welcoming you to our backyard.
Great Ocean Road Holidays






























